REQUEST A TOUR If you would like to see this home without being there in person, select the "Virtual Tour" option and your agent will contact you to discuss available opportunities.
In-PersonVirtual Tour

$ 16
3,584 SqFt
$ 16
3,584 SqFt
Key Details
Property Type Commercial
Sub Type Other, See Remarks
Listing Status Active
Purchase Type For Rent
Square Footage 3,584 sqft
Subdivision 355 - Corporate
MLS® Listing ID 40667520
Property Sub-Type Other, See Remarks
Source Cornerstone Association of REALTORS®
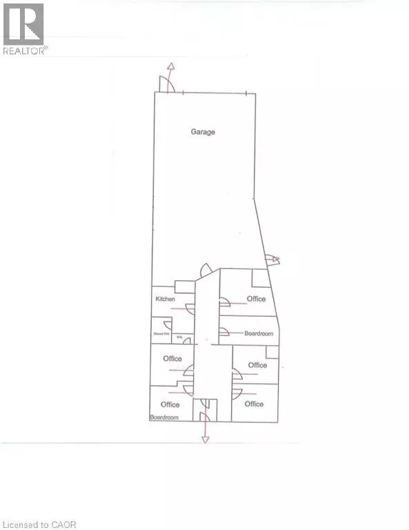
Property Description
3584 sq. ft. end cap (extra windows) unit now ready for immediate occupancy. 12' x 12' drive in loading door and 1970 sq. ft. nicely finished office space. T.M.I. is estimated at 4.61 per sq. ft. per annum for 2025. (id:24570)
Location
Province ON
Rooms
Kitchen 0.0
Exterior
Parking Features No
Community Features High Traffic Area
View Y/N No
Private Pool No
Building
Story 1
Sewer Municipal sewage system
Others
Ownership Other, See Remarks

"My job is to find and attract mastery-based agents to the office, protect the culture, and make sure everyone is happy! "






